產品分類:冶金/鑄造起重機
生產廠家:山東龍輝起重機械有限公司
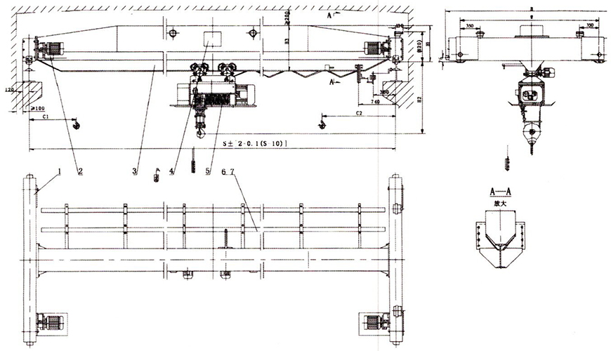
產品介紹:一、產品介紹: 冶金/鑄造起重機是煉鋼連鑄工藝中的主要設備,用于冶煉過程中液態金屬的轉運、澆注及兌鐵水等作業,例如吊運和轉運液態鋼包。它通過起重吊鉤或其它取物裝置及時、...




山東龍輝起重可根據用戶需求訂制各型號非標起重機,主營通用單雙梁、橋門式起重機、冶金起重機、防爆起重機、歐式起重機、潔凈起重機、智能全自動抓斗起重機、集裝箱龍門吊等產品的設計、研發、制造、銷售、改造、安裝維修保養等業務。
歡迎新老客戶和各界朋友光臨合作或來電來涵垂詢!
抖音掃碼觀看產品介紹:

上一篇:沒有了
下一篇:沒有了